06/05/2013

Sobre a localização do Primeiro e Segundo Templos em Jerusalém

“Por causa dos nossos pecados fomos exilados do nosso país e banidos da nossa terra. Não podemos ir para cima como peregrinos para adorar-Te, para realizar os nossos deveres em tua casa escolhida, o grande e Templo Sagrado, que foi chamado pelo Teu nome, por conta da mão que estava solta no teu santuário. Que seja a Tua vontade, Senhor nosso Deus e Deus de nossos pais, misericordioso Rei, em Teu amor abundante novamente para ter misericórdia de nós e em teu santuário; reconstruí-lo de forma rápida e ampliar a sua glória.” (The Jewish Prayer Book)
Vista do Monte do Templo, olhando em direção ao sudeste.

Sob o pavimento do nível na parte superior esquerda da foto eram as câmaras abobadadas conhecidas como "Estábulos de Salomão" tradicionalmente datada do alargamento do Monte de Herodes. Para a direita, no topo, é a cúpula cinza da Mesquita Al Aqsa. A parte mais à direita da foto mostra o Muro Ocidental (Kotel), a área de oração judaica. O Domo da Rocha é especialmente bonita por causa da recente adição da nova folha de ouro sobre a cúpula de alumínio anodizado. O local tradicional do Primeiro e Segundo Templos reside nas imediações do Domo da Rocha. O local proposto para os Templos do Norte é apenas para a esquerda para as escadas no canto inferior esquerdo da foto. Muito certamente ficaria a meio caminho entre o Domo da Rocha e a mesquita Al Aqsa, sob uma fonte de ablução islâmica conhecido como El Kas. O nível do leito rochoso do Monte Moriá aflora dentro do Domo da Rocha e está apenas sob as pedras do pavimento da plataforma circundante. No entanto, para o sul o alicerce cai abruptamente em direção à Cidade de David e a junção dos Vales de Hinom e Cedrom
O Monte do Templo: Local dos templos judaicos antigos

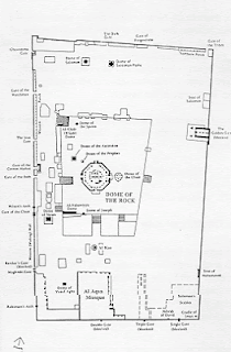
O Monte do Templo, na Cidade Velha de Jerusalém hoje mede cerca de 45 hectares de extensão. É cercada por uma muralha trapezoidal: as medidas da parede sul são cerca de 910 pés, o norte cerca de 1025, a parede leste cerca de 1520 e na parede oeste cerca de 1.580 pés de comprimento. A altura média acima do nível do mar da plataforma é cerca de 2400 metros acima do nível do mar. A maioria dos edifícios e as características de superfície são islâmicas - sem traços visíveis do primeiro ou segundo templos na plataforma hoje. A área é um parque-como nas suas configurações com plantas de árvores e arbustos e muitos edifícios e monumentos adicionados ao longo dos últimos 1300 anos de administração muçulmana dos lugares antigos.
A área da plataforma atual do Monte do Templo está topograficamente abaixo do pico do cume de Jerusalém conhecido como Monte Moriá. Este é o lugar de David comprado a um jebuseu chamado Ornã, no final de seu reinado. O rei David preparou a área para construir uma casa permanente para Deus afim de substituir o Tabernáculo de Moisés, que acompanhou os judeus desde o êxodo do Egito para a Terra Prometida. David tinha os planos elaborados para um edifício cujas dimensões eram o dobro dos do Tabernáculo, e ele acumulou grandes quantidades de materiais de construção: pedra, cedro, e muito ouro e prata. No entanto, foi o seu filho Salomão, que realmente construiu o primeiro templo judaico (1 Crónicas 22:14-15, 28:11-20).
O lugar do Monte do Templo, onde está agora localizado é considerado por muitas fontes respeitáveis ​​para ser o local onde Abraão deveria sacrificar Isaque (Génesis 22:1-2). Enquanto Salomão construiu o Primeiro Templo há cerca de 1000 anos, a visita de Abraão ao Monte Moriá foi de cerca de mil anos antes.

Solo Sagrado
De acordo com fontes rabínicas, tanto o primeiro como o segundo templo foram construídos com os mesmos fundamentos, no mesmo local em algum lugar do Monte do Templo. O local tinha que ser solo sagrado que não havia sido usado anteriormente para túmulos e que não era um local de culto pagão anterior ("lugar alto"). O santuário interior do Templo, o Santo dos Santos, ou Kodesh Hakodeshim, onde a Arca da Aliança foi colocada, marcava o centro exato do mundo, e foi a zona mais interna em santidade ou santidade no pensamento judaico. A presença manifestada por Deus, na Shekinah, estava centrada entre os querubins da Arca e especialmente notado na dedicação do Primeiro Templo.
Quando Salomão terminou a sua oração, desceu fogo do céu e consumiu o holocausto e os sacrifícios, e a glória do Senhor enchia o templo. E os sacerdotes não podiam entrar na casa do SENHOR, porque a glória do Senhor encheu a casa do SENHOR. Quando todos os filhos de Israel, vendo descer o fogo e a glória do Senhor sobre o templo, prostraram-se com o rosto em terra sobre o pavimento, e adoraram e deram graças ao Senhor, dizendo: "Porque ele é bom, porque a sua benignidade dura para sempre. " (2 Crónicas 7:1-3)
A longa história do Primeiro e Segundo Templos é detalhada tanto na Bíblia e em muitas fontes extra-bíblicas.
Ambos os antigos templos judaicos são de interesse para os cristãos, bem como para os judeus. O Segundo Templo era modesto em tamanho e mobiliário até Herodes, o Grande começou os seus planos de grandes remodelações que continuaram por 40 anos. Foi neste segundo templo judaico ampliado e expandido os seus espaços onde se realizavam muitas das cerimónias de julgamento, dedicação e circuncisão (Lucas 2:21-39. Mais tarde, Jesus surpreendeu os líderes religiosos com o seu conhecimento das Sagradas Escrituras os doutores do templo (Lucas 2:41-50). Em duas ocasiões distintas Jesus entrou e limpou o templo, expulsando os cambistas e vendedores comerciais dos tribunais. (João 2:12-25, Mateus 21:23-26)
Numa das suas discussões finais com os seus discípulos (Mat 24), Jesus predisse a destruição do Segundo Templo. Foi, de facto, nivelado ao chão no dia 9 do mês de Av do ano 70 dC. O templo foi completamente destruída e o lugar tem sido tão extensivamente modificado durante o período Romano, muçulmanos e cruzados que existem dúvidas consideráveis quanto ao local onde os templos realmente estava.
 
Entre as inúmeras controvérsias sobre o Templo sobre a precisão do local original. Há três conjecturas principais em discussão ativa nos últimos anos. Estas três áreas de interesse no Monte do Templo têm sido o foco de intensa investigação, muitos debates e discussão, e crescente controvérsia. Por trás de muitas dessas discussões alguns planos apresentado por uma série de grupos de judeus para a construção do templo judaico não são muito sérias e tendem a criar conflitos políticos.
As principais áreas no Monte do Templo, que são discutidas seriamente em conta a localização real do Primeiro e Segundo templos judaicos são:
O local atual do Domo da Rocha. Este é o chamado "local tradicional". Existem duas variantes deste modelo.
Norte do Domo da Rocha. Físico Asher Kaufman propôs a localização do Norte àcerca de duas décadas.

Sul do Domo da Rocha. Tuvia Sagiv, um arquiteto de Tel Aviv, propôs uma localização a sul para os templos com ampla documentação e pesquisa nos últimos cinco anos.
Foto aérea do Monte do Templo Hoje

 
O local tradicional
O local tradicional do Templo é dito estar abaixo ou muito próximo ao santuário muçulmano conhecido como o Domo da Rocha. Alguns relatos históricos dizem que este edifício foi construído pelos muçulmanos para cobrir o local do templo judeu de origem e a maioria dos rabinos em Israel hoje associam a localização do templo original com este lugar. Dr. Leen Ritmeyer tem pesquisado e escrito sobre os originais 500 côvados quadrados do Monte do Templo original, baseado nessa premissa.

Artigos recentes em revistas da especialidade apoiam este ponto de vista. (1) O arqueólogo Dr. Dan Bahat defende vigorosamente o local tradicional - desenho resultante dos seus anos de experiência e estudo de toda a cidade e a sua história. As suas palestras sobre o assunto são completas, convencendo e cativantes. No entanto, assim também são as teorias alternativas atualmente propostas!

Local tradicional dos templos
A conjectura do Norte
Baseado numa série de considerações topológicas e arqueológicas, a pesquisa do Dr. Asher Kaufman ao longo das duas últimas décadas resultou em séria consideração a ser dada a um lugar a 330 pés para o norte do Domo da Rocha.
Os afloramentos do Monte Moriah e onde está assenta o Domo da Rocha, como é bem sabido. Embora a elevação e alicerce cai drasticamente para o sul na direção da cidade de David, o nível do leito rochoso é apenas sob as pedras do calçamento a mais de 100 metros ao norte da cúpula do santuário da Rocha. Um determinado nível de afloramento rochoso encontra-se sob um pequeno santuário islâmico conhecido como "The Dome dos Tablets" ou "The Dome dos Espíritos", para os árabes. Ambos os nomes sugerem uma associação com os templos judaicos. É sob esta pequena copa sem expressão que estariam apoiados os pilares que Kaufman localiza o local do templo. (2)
A colocação do Norte dos Templos
A conjectura do Sul
Muitas pessoas que têm acompanhado esta evolução ainda não tem a certeza de um terceiro ponto de vista, que poderia muito bem ser chamado "a Conjectura do Sul". Uma vez que este modelo é menos conhecido, vamos tentar detalhar um pouco mais. Este ponto de vista foi defendido nos últimos cinco anos, por Tuvia Sagiv, arquiteto israelita proeminente.
Há um certo número de problemas com cada um dos locais anteriormente mencionados. Para apreciar plenamente algumas das dificuldades, é necessário visualizar a topografia da área do Monte do Templo.
(Equidistância de 10 metros)
Norte está no topo do mapa. O Monte das Oliveiras é na extrema direita, o Monte Sião, à esquerda. Monte Moriá sobe como uma longa crista na extremidade sul da cidade de David e continua passando o centro do Monte do Templo, e atinge o seu ponto mais alto fora dos muros do norte da Cidade Velha, no topo do mapa.
A base aumenta quando vai em direção ao norte a partir da base da cidade de David a terra mais ao norte da área do Monte do Templo. (Esta é obscurecida no local desde a plataforma do Monte do Templo em si é uma grande área plana cercada por um muro de contenção.) O extremo sul da Plataforma é realmente construído sobre pilares subterrâneos altos e arcos.
Para o leste do Monte do Templo encontra-se o Vale do Cedron, e o Monte das Oliveiras. Para o sul, a cidade de David e o Vale do Hinom. Para o oeste, o Muro das Lamentações famoso (antigamente chamados "Parede das Lamentações"). Depois e ainda, uma elevação, fora das muralhas da cidade, que muitos acreditam que foi o local do Gólgota. A base do Monte Moriá continua a subir para o norte - afloramentos na parede norte revelam cortes de estrada que foram feitas na rocha no extremo norte da Cidade Velha fora da Porta de Damasco e ao longo da estrada principal para o leste. A crista do Monte Moriá é um pouco acima do atual Jardim da Tumba.

 Questões críticas em localizar o local do templo:
Quando se compila todos os fatores conhecidos num modelo computadorizado tridimensional da área do Monte do Templo, vários problemas surgem:
1. Onde estava a Fortaleza Antónia?
Jerusalém antiga era protegida do leste, sul e oeste por vales. A Fortaleza Antónia foi localizada ao norte para proteger o lado mais fraco ao norte da cidade. (Na verdade, foi a partir do norte que Tito Vespasiano rompeu as paredes no seu famoso ataque em 70 dC)

De acordo com fontes antigas, a fortaleza estava numa colina acerca de 25 metros de altura. O atual edifício Omriah El está sobre uma rocha de apenas 5 metros de altura. Das muitas estratigráficas e outras considerações, é posta em dúvida por alguns especialistas localização real da Fortaleza Antónia . Documentos de Tuvia Sagiv levam a pôr em questão a localização real da Fortaleza Antónia, que ele acredita que foi bem ao sul, talvez no local da Cúpula da Rocha.
2. A localização do antigo Norte Moat (o Fosso)
Fossos tradicionais mostram um barranco, cheio de fossas (fosso), ao norte do Monte do Templo, situada a sul do Fortaleza Antónia, entre a fortaleza e o Monte do Templo.
De acordo com fontes antigas, no entanto, o Fortaleza Antónia e o Monte do Templo estavam ao lado um do outro. O fosso deve ser a norte da Torre de proteção, colocando a Antónia sobre onde o Domo da Rocha está hoje! Localização de Asher Kaufman dos Templos coloca o fosso imediatamente ao norte do local onde os templos estavam. Na verdade, Dan Bahat brinca que o templo de Kaufman iria "cair no fosso!"
3. Os Portões de Hulda
Os portões de  Hulda foram o principal acesso à área do Templo do sul. De acordo com a Mishná, a diferença de alturas entre o portão de Hulda e do Santo dos Santos era de aproximadamente 10 metros, com cerca de 39 m entre a entrada para o Monte do Templo ao nível do próprio Templo. A cúpula tradicional proposta do Dome da rocha exige 20 metros de altura e 80 m de separações.
As hipóteses atuais sobre o Portão Hulda e túneis não são mencionados nas fontes antigas. As discrepâncias sugerem uma menor e, portanto, mais ao sul, localização. Tuvia Sagiv nos seus ensaios discute o problema das Portas do Sul e a sua elevação em relação aos Templos.

4. A Vista a partir do Norte
Flavius ​​Josephus descreve o fato de que o Monte Bizita (Gólgota?), Foi localizado ao norte do Monte do Templo e obscurecia a visão do Templo do norte.

Se o templo estava no Domo da Rocha, que seria visível de lugares tão distantes como a cidade de Ramallah. A ponto de obscurecer a visão do norte, ele teria que estar a um nível mais baixo, isto é, para o sul.
5. Visão do rei Herodes Agripa do Templo do Oeste
Josefo, na sua obra As Guerras judaicas, descreve o fato de que o Rei Herodes Agripa podia olhar do seu palácio Hasmonean (ou perto do presente Citadel no Portão de Jaffa), e ver os sacrifícios no Azarah, no altar do Segundo Templo. Isto enfurecia os judeus, que, em seguida, construiram um muro que se estende da altura da parede traseira ocidental do templo propriamente dito, a fim de bloquear a visão. Os soldados romanos, que patrulhavam o limite ocidental - portanto, incapazes de ver o Azarah - exigiam que a parede deveria ser demolida. Os judeus opuseram-se, e ainda obtiveram o consentimento do imperador Nero a deixar a parede no lugar.
Se o Templo estava no local do Domo da Rocha, que teria exigido um palácio à altura da torre de 75 metros para ver o Azarah. Nunca houve um edifício de tal altura em Jerusalém. Isso tudo implica num local menor, mais ao sul do Templo.
6. O Aqueduto da Água de Jerusalém e dos Montes da Judeia
Os canais de água que abasteciam Jerusalém começavam na área das montanhas de Hebron, passavam pelas piscinas de Salomão perto de Belém, e fluíam para Jerusalém. O menor canal atingia o Monte do Templo através do Bairro Judeu e a Ponte Wilson. De acordo com as autoridades antigas, a canalização de água fornecia água para mikvá os Sacerdotes (banho ritual), localizado acima da porta das águas, e também fornecia água para a lavagem do sangue da Azarah. Partes deste aqueduto são claramente visíveis até hoje.
"Água viva", isto é, fresca, água corrente, e não água de uma cisterna, foi necessária para o banho ritual (micvê) usado pelos sacerdotes do templo, e para as lavagens do templo em conexão com os sacrifícios.
Um levantamento do nível do aqueduto revela que, se o Templo tivesse localizado na mesma elevação que a presente cúpula do santuário do Rocha, o aqueduto seria mais de 20 metros mais baixo para atender tanto o Azarah ou da porta das águas. A partir desse levantamento, parece que o templo deve ter sido inferior a 20 metros, e, portanto, para o sul.
 
7. Medidas Eletrónicas
O terreno foi sujeito a sondas de radar por Tuvia Sagiv, embora não conclusivos, sugerem cofres, talvez "kippim" (arcos rabínica), e outras estruturas que se esperariam por baixo do Templo, para o sul. Os locais do norte são praticamente rocha sólida.
Mais recentemente Sagiv conduziu a digitalização a infravermelhos as paredes e a plataforma. Durante o dia, o sol aquece o Monte do Templo, de maneira uniforme, mas à noite o resfriamento (por condução e radiação) não é uniforme, revelando anomalias do subsolo. Nas imagens abaixo, as áreas "quentes" são brilhantes indicam as fundações maciças sob as pedras do calçamento. Para um apuramento mais minucioso seria necessário mais trabalhos de radar e penetração de toda aquela área o que encontra uma resistência árabe cada vez maior.

Imagens nocturnas das profundidades das paredes do Domo da Rocha
Estas imagens em preto-e-branco tiradas por scanner a infravermelho falsa-cor original revelam claramente uma antiga fundação pentagonal sob o Domo. Estes resultados são discutidos por Tuvia Sagiv nos seus desenhos e documentos.
8. A pesquisa da arquitetura do forte romano

Após a revolta de Bar Kochba, em 132 dC, os romanos nivelaram toda a cidade de Jerusalém e construíram uma cidade romana, Aelia Capitolina, sobre as ruínas. Para eliminar qualquer presença judaica no Monte do Templo, eles construíram um templo a Júpiter no local.
Um templo semelhante, construído pelo mesmo construtor na mesma época, foi descoberto em Baalbek, no Líbano.
 
As práticas arquitectónicas romanas da época apresentavam uma basílica retangular, e uma estrutura de polígono em frente a um pátio. Quando essa arquitetura é sobreposta no Monte do Templo, que corresponde à Mesquita de Al Aqsa e à Cúpula da Rocha exatamente.
Esta semelhança arquitetónica única sugere que o Templo Romano de Júpiter pode ter sido neste mesmo local, convertido para fins cristãos no século 4, e depois serviu como base para as atuais estruturas dos muçulmanos, o Al Aqsa Mosquita e a Cúpula da Rocha, que foram construídos no século 7.
 
O Templo Romano em Baalbek, no Líbano
O comentário de Jerónimo sobre Isaías menciona uma estátua equestre do imperador Adriano, que é colocada diretamente sobre o local do Santo dos Santos. Se a arquitetura de Baalbek é o modelo correto, isto colocaria o Santo dos Santos, em algum lugar sob a atual El Kas.
Quando um mapa do Templo Baalbek é sobreposto sobre as atuais estruturas do Monte do Templo uma impressionante semelhança pode ser vista:
 

Construção de Baalbek sobreposta ao Monte do Templo

Qual a conjectura correta?
Em Israel, muitas vezes é dito que se você tiver dois judeus terá três pareceres! Só o tempo dirá qual das visões acima está correta. Estas conjecturas continuarão a ser debatidas até que Israel seja capaz de conduzir uma investigação arqueológica completa sob o Monte do Templo propriamente dito. (3)
Infelizmente, o Monte do Templo hoje permanece sob a supervisão do Waqf, o Conselho Supremo Muçulmano, e eles têm impedido os estudos arqueológicos sistemáticos. Na verdade, o Waqf está cada vez mais resistente às investigações de qualquer espécie sobre a plataforma - o que eles consideram ser uma das mais sagradas mesquita para o Islão.
Quem sabe o que os eventos em desenvolvimento na história de Jerusalém, um dia, mudarão o status quo, permitindo a investigação científica de todo o Monte do Templo, abaixo do solo, bem como à superfície? Então, de acordo com as esperanças e sonhos dos judeus devotos ao longo dos séculos, um terceiro templo pode ser construído sobre os alicerces dos Primeiro e Segundo Templo e a adoração no templo de acordo com a Torah restaurada.
Se Tuvia Sagiv estiver correto, o local do templo encontra-se ao leste do Muro das Lamentações, sob o amontoado de árvores entre o Domo da Rocha e a Mesquita de Al Aqsa.
Notas:
1. Leen Ritmeyer, bíblica revisão Arqueológico, março / abril de 1992. Enviar e-mail para o Dr. Leen Ritmeyer (ritmeyer@dial.pipex.com).
2. Dr. Asher Kaufman Selig, bíblica revisão Arqueológico, março / abril de 1983; Tractate Middot, Har Yearíeh Press, Jerusalém, 1991.
3. Fitas de áudio apresentando alto-falantes nas recentes Conferências Monte do Templo em Jerusalém, defendendo todos os três locais propostos para os templos podem ser obtidas Koinonia House, PO Box D, Coeur d'Alene, Idaho 83816-0347.
por Lambert Dolphin e Michael Kollen

2 comentários:

  1. Desculpa a ignorância, mas gostaria de saber (pelo menos aproximadamente) a distância em Km entre o gólgota e o templo de Salomão

    ResponderEliminar
  2. gostaria de saber se o monte de moriá e o mesmo Golgota?

    ResponderEliminar